| 検索条件を変更する | 検索条件を保存 | 224 件 >> 18/23 |
|---|
| 比較リストに追加 | 比較リストを表示 メールで問い合わせ |
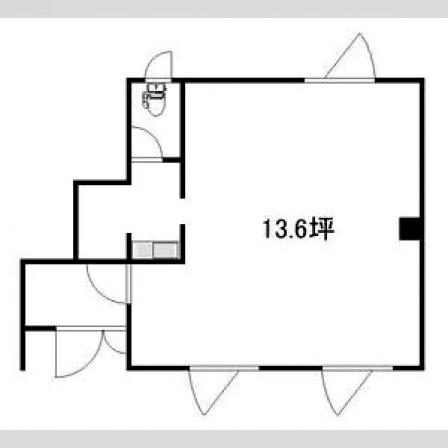
北23条西10丁目の テナントを詳しく見る |
|
|---|---|---|---|
|
テナント種別:路面 貸事務所
コメント: ★宮の森北24条通り近く の1階路面・駐車場2台無料 |
|||
| 住所: 札幌市北区北23条西10丁目 | 交通: 地下鉄南北線「北24条」 徒歩10分 | ||
|
|
賃料: 154,000 円(税込) 坪単価11,324円 管共込み坪単価11,324円 | ||
| 面積: 44.95u 13.6坪 | 敷金: 280,000円 | ||
| 構造: 鉄筋 地上3階 / 空き階数 1 階 | |||
| 駐車場: 有り 0円 2台可 | |||
| 設備: 個別給湯 個別冷房 個別トイレ | |||
|
|
|||
| 問い合わせ先:ビッググループ麻生南口店・(有)アクトプラス 住所:札幌市北区北38条西4丁目1-15 電話:011-708-3333 | |||
| 比較リストに追加 | 比較リストを表示 メールで問い合わせ |
北6条西6丁目の テナントを詳しく見る |
|
|---|---|---|---|
|
テナント種別:貸事務所
コメント:【札幌駅北口エリア】札幌駅徒歩5分の事務所に適したテナント物件です。 札幌駅に近いのでアクセスも抜群!! 業種、諸費用なんでもご相談ください。 |
|||
| 住所: 札幌市北区北6条西6丁目 | 交通: JR「札幌」 徒歩5分 | ||
|
|
賃料: 132,880 円(税込) 共益費:26,576円 坪単価11,001円 管共込み坪単価13,201円 | ||
| 面積: 39.93u 12.08坪 | 敷金: 724,800円 | ||
| 構造: SRC(鉄骨鉄筋コン 地上0階 / 空き階数 1 階 | |||
| 駐車場: 有り 16,500円 | |||
| 設備: 電気 | |||
|
|
|||
| 問い合わせ先:(株)エムズ テナント事業部 住所:札幌市白石区東札幌3条6丁目1-1 電話:011-867-6667 | |||
| 比較リストに追加 | 比較リストを表示 メールで問い合わせ |
新琴似12条16丁目の テナントを詳しく見る |
|
|---|---|---|---|
|
テナント種別:貸事務所 貸倉庫
コメント:◆灯油ボイラー・FF&IHクッキングヒーター使用!≪新琴似第5横通沿い!≫ |
|||
| 住所: 札幌市北区新琴似12条16丁目 | 交通: 中央バス「新琴似12条16丁目」 徒歩分 | ||
|
|
賃料: 60,500 円(税込) 管理費:5,500円 坪単価2,912円 管共込み坪単価3,177円 | ||
| 面積: 68.67u 20.77坪 | 敷金: | ||
| 構造: 鉄骨 地上4階 / 空き階数 2 階 | |||
| 駐車場: 有り 6,600円 RH区画は冬季RH料(12月〜3月)5,500円(税込)/月 | |||
| 設備: 個別給湯 個別暖房 個別トイレ | |||
|
|
|||
| 問い合わせ先:不動産のスタート・葵地研(株) 住所:札幌市白石区菊水4条2丁目1-2 電話:011-827-1275 | |||
| 比較リストに追加 | 比較リストを表示 メールで問い合わせ |
篠路町上篠路の テナントを詳しく見る |
|
|---|---|---|---|
|
テナント種別:貸事務所 貸店舗
コメント:★百合が原公園近くの一戸建て・駐車場1台無料 |
|||
| 住所: 札幌市北区篠路町上篠路 | 交通: 中央バス「篠路高校」 徒歩5分 | ||
|
|
賃料: 93,500 円(税込) 坪単価3,318円 管共込み坪単価3,318円 | ||
| 面積: 93.15u 28.18坪 |
敷金:
0ヶ月分 礼金1ヶ月分 |
||
| 構造: 木造 地上2階 / 空き階数 1 階 | |||
| 駐車場: 有り 0円 1台可 青空 | |||
| 設備: 個別給湯 個別暖房 個別トイレ 24時間利用可 | |||
|
|
|||
| 問い合わせ先:ビッググループ麻生南口店・(有)アクトプラス 住所:札幌市北区北38条西4丁目1-15 電話:011-708-3333 | |||
| 比較リストに追加 | 比較リストを表示 メールで問い合わせ |
新川5条1丁目の テナントを詳しく見る |
|
|---|---|---|---|
|
テナント種別:貸事務所
コメント:★琴似、栄町通り目の前・敷金、礼金なし・駐車場あり・新規起業者向き |
|||
| 住所: 札幌市北区新川5条1丁目 | 交通: JR学園都市線「新川駅」 徒歩5分 | ||
|
|
賃料: 57,000 円(税込) 管理費:3,000円 坪単価3,635円 管共込み坪単価3,826円 | ||
| 面積: 51.84u 15.68坪 | 敷金: 0ヶ月分 | ||
| 構造: 木造 地上2階 / 空き階数 2 階 | |||
| 駐車場: 有り 11,000円 1台可 | |||
| 設備: 個別給湯 個別暖房 個別トイレ 光回線対応 24時間利用可 | |||
|
|
|||
| 問い合わせ先:ビッググループ麻生南口店・(有)アクトプラス 住所:札幌市北区北38条西4丁目1-15 電話:011-708-3333 | |||
| 比較リストに追加 | 比較リストを表示 メールで問い合わせ |
北6条西6丁目の テナントを詳しく見る |
|
|---|---|---|---|
|
テナント種別:貸事務所
コメント:【中央区/札幌駅エリア】札幌駅西口最寄りのお手頃小規模事務所に空き予定が出ました!地下鉄,JRまで徒歩3分圏内に立地しているので利便性抜群!業種、諸費用なんでもご相談ください! |
|||
| 住所: 札幌市北区北6条西6丁目 | 交通: JR「札幌」 徒歩5分 | ||
|
|
賃料: 99,000 円(税込) 共益費:19,800円 坪単価8,252円 管共込み坪単価9,902円 | ||
| 面積: 39.66u 12坪 | 敷金: 540,000円 | ||
| 構造: S(鉄骨造) 地上3階 / 空き階数 1 階 | |||
| 駐車場: 有り 35,000円 | |||
| 設備: 電気・暖房(種別現地確認)・エアコン(残置) | |||
|
|
|||
| 問い合わせ先:(株)エムズ テナント事業部 住所:札幌市白石区東札幌3条6丁目1-1 電話:011-867-6667 | |||
| 比較リストに追加 | 比較リストを表示 メールで問い合わせ |
新琴似10条17丁目の テナントを詳しく見る |
|
|---|---|---|---|
|
テナント種別:貸事務所
コメント:【新琴似エリア】2階事務所区画です。駐車場は4台以上駐車可能です。1階倉庫付事務所も同時募集です。 合せての契約も可能です。 |
|||
| 住所: 札幌市北区新琴似10条17丁目 | 交通: JR「新琴似」 徒歩35分 | ||
|
|
賃料: 110,000 円(税込) 坪単価6,112円 管共込み坪単価6,112円 | ||
| 面積: 59.5u 18坪 | 敷金: 360,000円 | ||
| 構造: S(鉄骨造) 地上2階 / 空き階数 2 階 | |||
| 駐車場: 有り 22,000円 | |||
| 設備: 電気・給排水・給水設備・トイレ | |||
|
|
|||
| 問い合わせ先:(株)エムズ テナント事業部 住所:札幌市白石区東札幌3条6丁目1-1 電話:011-867-6667 | |||
| 比較リストに追加 | 比較リストを表示 メールで問い合わせ |
新琴似2条6丁目の テナントを詳しく見る |
|
|---|---|---|---|
|
テナント種別:路面 貸事務所 貸店舗
コメント:【北区/新琴似エリア】〈店舗付き住居タイプ〉新琴似通り沿い、2番通り至近の店舗付き住宅!1棟貸空きました!2階住居部分美装済みで綺麗です。前面駐車場2台付! 業種・初期費用等何でも相談して下さい! |
|||
| 住所: 札幌市北区新琴似2条6丁目 | 交通: JR「新川」 徒歩15分 | ||
|
賃料: 154,000 円(税込) 坪単価3,697円 管共込み坪単価3,697円 | ||
| 面積: 137.69u 41.65坪 | 敷金: 420,000円 | ||
| 構造: 木造一部鉄筋コンクリ 地上3階 / 空き階数 1 階 | |||
| 駐車場: 有り | |||
| 設備: 電気・暖房(種別現地確認)・照明・給湯(残置物)・給排水・給水設備・トイレ | |||
|
|
|||
| 問い合わせ先:(株)エムズ テナント事業部 住所:札幌市白石区東札幌3条6丁目1-1 電話:011-867-6667 | |||
| 比較リストに追加 | 比較リストを表示 メールで問い合わせ |
北24条西3丁目の テナントを詳しく見る |
|
|---|---|---|---|
|
テナント種別:貸事務所 貸店舗
コメント:【北区/北24条エリア】地下鉄北24条駅徒歩2分!! 駅近の角地ビルのテナントに空き予定です!! 業種や諸条件等何でもお気軽にお問い合わせください! |
|||
| 住所: 札幌市北区北24条西3丁目 | 交通: 地下鉄「北24条」 徒歩2分 | ||
|
|
賃料: 132,000 円(税込) 坪単価11,596円 管共込み坪単価11,596円 | ||
| 面積: 37.63u 11.38坪 | 敷金: 360,000円 | ||
| 構造: RC(鉄筋コンクリー 地上5階 / 空き階数 3 階 | |||
| 駐車場: 無し | |||
| 設備: 電気 | |||
|
|
|||
| 問い合わせ先:(株)エムズ テナント事業部 住所:札幌市白石区東札幌3条6丁目1-1 電話:011-867-6667 | |||
| 比較リストに追加 | 比較リストを表示 メールで問い合わせ |
篠路町拓北31の テナントを詳しく見る |
|
|---|---|---|---|
|
テナント種別:貸事務所 貸土地
コメント:<小屋もあり>約50坪の貸地物件!! |
|||
| 住所: 札幌市北区篠路町拓北31 | 交通: 中央バス「拓北1条3丁目」 徒歩分 | ||
|
|
賃料: 100,001 円(税込) 坪単価1,857円 管共込み坪単価1,857円 | ||
| 面積: 178u 53.85坪 | 敷金: 2ヶ月分 | ||
| 構造: 地上階 / 空き階数 階 | |||
| 駐車場: 無し | |||
| 設備: | |||
|
|
|||
| 問い合わせ先:(株)アカマ不動産 住所:札幌市白石区北郷8条7丁目2-3 電話:011-799-4834 | |||
▼各物件の「□問い合わせ」にチェックをつけて▼