| 検索条件を変更する | 検索条件を保存 | 238 件 >> 18/24 |
|---|
| 比較リストに追加 | 比較リストを表示 メールで問い合わせ |
本郷通7丁目の テナントを詳しく見る |
|
|---|---|---|---|
|
テナント種別:貸事務所 貸店舗
コメント:【白石区/南郷7丁目エリア】南郷7丁目徒歩圏内の3階店舗・事務所向けの物件です!エレベータ−なのでとても便利です!駐車場も複数台確保可能です!まずはお問合せ下さい! |
|||
| 住所: 札幌市白石区本郷通7丁目 | 交通: 地下鉄「南郷7丁目」 徒歩5分 | ||
|
|
賃料: 104,500 円(税込) 坪単価7,805円 管共込み坪単価7,805円 | ||
| 面積: 44.26u 13.39坪 | 敷金: 285,000円 | ||
| 構造: RC(鉄筋コンクリー 地上4階 / 空き階数 3 階 | |||
| 駐車場: 有り 12,000円 | |||
| 設備: 電気・ガス・暖房(種別現地確認)・給排水・トイレ | |||
|
|
|||
| 問い合わせ先:(株)エムズ テナント事業部 住所:札幌市白石区東札幌3条6丁目1-1 電話:011-867-6667 | |||
| 比較リストに追加 | 比較リストを表示 メールで問い合わせ |
本郷通7丁目南の テナントを詳しく見る |
|
|---|---|---|---|
|
テナント種別:路面 貸店舗
コメント:地下鉄南郷7丁目徒歩圏内本郷通沿い路面店!現在はサンドウィッチ販売店が入居中。条件・業種ご相談ください! |
|||
| 住所: 札幌市白石区本郷通7丁目南 | 交通: 地下鉄東西線「南郷7丁目」 徒歩4分 | ||
|
|
賃料: 99,000 円(税込) 坪単価10,465円 管共込み坪単価10,465円 | ||
| 面積: 31.2727u 9.46坪 | 敷金: 3ヶ月分 | ||
| 構造: 鉄骨 地上9階 / 空き階数 1 階 | |||
| 駐車場: 無し | |||
| 設備: 個別給湯 個別トイレ | |||
|
|
|||
| 問い合わせ先:(株)パートナー 住所:札幌市白石区本通5丁目南4-12 電話:011-846-8001 | |||
| 比較リストに追加 | 比較リストを表示 メールで問い合わせ |
川北1条1丁目の テナントを詳しく見る |
|
|---|---|---|---|
|
テナント種別:貸倉庫
コメント:★☆50坪の土地付き、倉庫、駐車場 |
|||
| 住所: 札幌市白石区川北1条1丁目 | 交通: 中央バス「川北1条1丁目」 徒歩5分 | ||
|
|
賃料: 110,000 円(税込) 坪単価2,200円 管共込み坪単価2,200円 | ||
| 面積: 165.289u 50坪 | 敷金: 1ヶ月分 | ||
| 構造: 地上階 / 空き階数 階 | |||
| 駐車場: 有り | |||
| 設備: | |||
|
|
|||
| 問い合わせ先:(株)クイック 住所:札幌市中央区南8条西11丁目3-5 電話:011-532-0919 | |||
| 比較リストに追加 | 比較リストを表示 メールで問い合わせ |
本郷通7丁目南の テナントを詳しく見る |
|
|---|---|---|---|
|
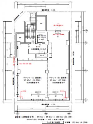
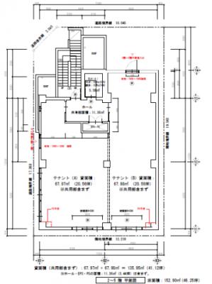
テナント種別:貸事務所
コメント:☆★SW南郷7丁目徒歩4分!本郷通商店街南側の好立地物件です♪」駐車場5台分込みですので多種多様な業種に対応可!諸条件ご相談下さい!! |
|||
| 住所: 札幌市白石区本郷通7丁目南 | 交通: 地下鉄東西線「南郷7丁目」 徒歩4分 | ||
|
|
賃料: 330,000 円(税込) 坪単価15,165円 管共込み坪単価15,165円 | ||
| 面積: 71.95u 21.76坪 | 敷金: 1ヶ月分 | ||
| 構造: 鉄筋 地上9階 / 空き階数 2 階 | |||
| 駐車場: 有り 0円 5台可 敷地内 5台分込み | |||
| 設備: 灯油FF・ロードヒーティング 個別給湯 個別暖房 個別トイレ 光回線対応 24時間利用可 エレベーター | |||
|
|
|||
| 問い合わせ先:(株)クイック 住所:札幌市中央区南8条西11丁目3-5 電話:011-532-0919 | |||
| 比較リストに追加 | 比較リストを表示 メールで問い合わせ |
米里1条2丁目の テナントを詳しく見る |
|
|---|---|---|---|
|
テナント種別:路面 貸事務所 貸店舗
コメント:★米里通り沿いの1階路面店舗・札幌新道にもアクセスがいい・無料駐車場5台付 |
|||
| 住所: 札幌市白石区米里1条2丁目 | 交通: JRバス/中央バス「米里1条2丁目」 徒歩2分 | ||
|
|
賃料: 121,000 円(税込) 坪単価7,457円 管共込み坪単価7,457円 | ||
| 面積: 53.64u 16.23坪 | 敷金: 3ヶ月分 | ||
| 構造: 木造 地上2階 / 空き階数 1 階 | |||
| 駐車場: 無し | |||
| 設備: 個別給湯 個別トイレ | |||
|
|
|||
| 問い合わせ先:ビッググループ麻生南口店・(有)アクトプラス 住所:札幌市北区北38条西4丁目1-15 電話:011-708-3333 | |||
| 比較リストに追加 | 比較リストを表示 メールで問い合わせ |
南郷通8丁目南の テナントを詳しく見る |
|
|---|---|---|---|
|
テナント種別:貸事務所 貸店舗
コメント:☆★SW南郷7丁目駅徒歩1分!水源地通沿いの好立地物件です♪諸条件お気軽にご相談下さい!! |
|||
| 住所: 札幌市白石区南郷通8丁目南 | 交通: 地下鉄東西線「南郷7丁目」 徒歩1分 | ||
|
|
賃料: 110,000 円(税込) 管理費:11,000円 坪単価6,875円 管共込み坪単価7,563円 | ||
| 面積: 48.36u 16坪 | 敷金: 3ヶ月分 | ||
| 構造: 鉄筋 地上3階 / 空き階数 3 階 | |||
| 駐車場: 無し | |||
| 設備: 事務所仕様、2025年4月2部屋をワンルームに改装 個別冷房 個別暖房 個別トイレ 24時間利用可 | |||
|
|
|||
| 問い合わせ先:(株)クイック 住所:札幌市中央区南8条西11丁目3-5 電話:011-532-0919 | |||
| 比較リストに追加 | 比較リストを表示 メールで問い合わせ |
本通18丁目北の テナントを詳しく見る |
|
|---|---|---|---|
|
テナント種別:貸事務所 貸店舗
コメント:【札幌市白石/本通りエリア】駐車場4台確保できます。 国道12号線沿いに建つテナント物件です。内装等ご相談ください。 駐車場も複数台確保できますのでお勧めです。近隣にコンビニ等もございます。業種、諸費用なんでもご相談ください。 |
|||
| 住所: 札幌市白石区本通18丁目北 | 交通: 地下鉄「南郷18丁目」 徒歩7分 | ||
|
|
賃料: 165,000 円(税込) 共益費:47,300円 坪単価3,636円 管共込み坪単価4,679円 | ||
| 面積: 150u 45.38坪 | 敷金: 450,000円 | ||
| 構造: RC(鉄筋コンクリー 地上0階 / 空き階数 0 階 | |||
| 駐車場: 有り 7,700円 | |||
| 設備: 電気 | |||
|
|
|||
| 問い合わせ先:(株)エムズ テナント事業部 住所:札幌市白石区東札幌3条6丁目1-1 電話:011-867-6667 | |||
| 比較リストに追加 | 比較リストを表示 メールで問い合わせ |
中央2条5丁目の テナントを詳しく見る |
|
|---|---|---|---|
|
テナント種別:貸事務所
コメント:★☆12号線すぐ近く、近隣バス通り多数の路線が通ります。 |
|||
| 住所: 札幌市白石区中央2条5丁目 | 交通: 地下鉄東西線「白石」 徒歩14分 | ||
|
|
賃料: 146,608 円(税込) 坪単価8,801円 管共込み坪単価8,801円 | ||
| 面積: 55.07u 16.66坪 | 敷金: 399,840円 | ||
| 構造: 鉄筋 地下1階 地上5階 / 空き階数 2 階 | |||
| 駐車場: 無し | |||
| 設備: | |||
|
|
|||
| 問い合わせ先:(株)クイック 住所:札幌市中央区南8条西11丁目3-5 電話:011-532-0919 | |||
| 比較リストに追加 | 比較リストを表示 メールで問い合わせ |
川下5条3丁目の テナントを詳しく見る |
|
|---|---|---|---|
|
テナント種別:貸店舗
コメント:★☆厚別通り沿い、スーパ等とかくにあります。 |
|||
| 住所: 札幌市白石区川下5条3丁目 | 交通: 中央バス「川下5条4丁目」 徒歩分 | ||
|
|
賃料: 102,850 円(税込) 管理費:3,300円 坪単価4,198円 管共込み坪単価4,333円 | ||
| 面積: 80.99u 24.5坪 |
敷金:
6ヶ月分 礼金1ヶ月分 |
||
| 構造: 木造 地上2階 / 空き階数 2 階 | |||
| 駐車場: 有り 2台可 料金込 | |||
| 設備: | |||
|
|
|||
| 問い合わせ先:(株)クイック 住所:札幌市中央区南8条西11丁目3-5 電話:011-532-0919 | |||
| 比較リストに追加 | 比較リストを表示 メールで問い合わせ |
中央2条5丁目の テナントを詳しく見る |
|
|---|---|---|---|
|
テナント種別:貸事務所
コメント:★☆12号線近く、環状通にもアクセス抜群です。12号線は、バス通りになっており、便数も多いです。 |
|||
| 住所: 札幌市白石区中央2条5丁目 | 交通: 中央バス「中央1条4丁目」 徒歩5分 | ||
|
|
賃料: 161,268 円(税込) 坪単価9,681円 管共込み坪単価9,681円 | ||
| 面積: 55.07u 16.66坪 | 敷金: 399,840円 | ||
| 構造: 鉄筋 地下1階 地上5階 / 空き階数 2 階 | |||
| 駐車場: 無し 要確認 | |||
| 設備: | |||
|
|
|||
| 問い合わせ先:(株)クイック 住所:札幌市中央区南8条西11丁目3-5 電話:011-532-0919 | |||
▼各物件の「□問い合わせ」にチェックをつけて▼