 |
|
| この物件の全ての写真、詳細情報を印刷します |
北23条東10丁目 路面 貸事務所 貸し倉庫
この物件は ビッググループ麻生南口店・(有)アクトプラス 011-708-3333まで
「札幌テナント探しで、問合せコード 250134を見た」とお問合せください。
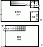
★地下鉄東豊線「元町駅」徒歩6分の新築倉庫付事務所・1階倉庫13坪 2階事務所16坪・駐車場4台無料!
賃料
330,000 円
管理費
面積
104.341u (31.5坪)
坪単価
10,476円 管理費共益費込み坪単価10,476円
住所
札幌市東区北23条東10丁目
交通
地下鉄東豊線「元町」徒歩6分
敷金/礼金
2ヶ月分 600,000円 礼金1ヶ月分
駐車場
有り 0円 4台可 敷地内(青空) 車種により台数変動あり
構造/階
木造 地上2階 / 空き階数 1階
完成
2025/7 完成
譲渡金
-
権利金
-
保証金
-
他の費用
水廻り消毒料 55,000円 / エアコン清掃 44,000円
引渡し予定
2025/8/1
取引態様
仲介
契約期間
3年
更新日
2025/10/16
設備等
個別給湯 個別冷房 個別暖房 個別トイレ 24時間利用可
特記事項
| 取り扱い |
ビッググループ麻生南口店・(有)アクトプラス |
| 問合せコード |
250134 |
| TEL |
011-708-3333 |
| Mail |
azabu-minami@act.kensakun.net
|
| 住 所 |
札幌市北区北38条西4丁目1-15
|
| 営業/定休 |
10:00〜20:00 年中無休 |
| 免許番号 |
石狩(2)第6860号 |

外観
1階・倉庫 2階・事務所
1階・倉庫前
1階・倉庫
1階・倉庫
1階・倉庫入口
2階への階段
2階・事務所
2階・給湯
2階・トイレ
地下鉄「元町駅」徒歩6分
賑やかな元町駅界隈